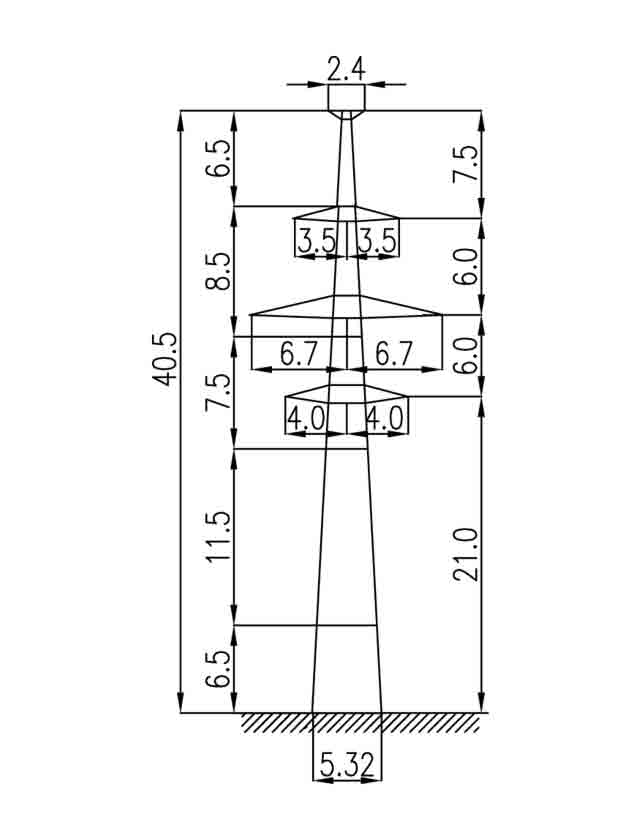
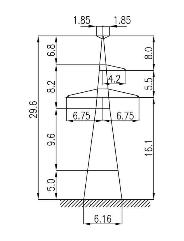
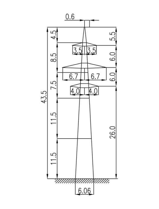
Анкерно-угловые: Анкерные угловые опоры воздушных линий 220 кВ производятся и устанавливаются для крепления и натяжения тросов и проводов при поворотах в Алма-ате.
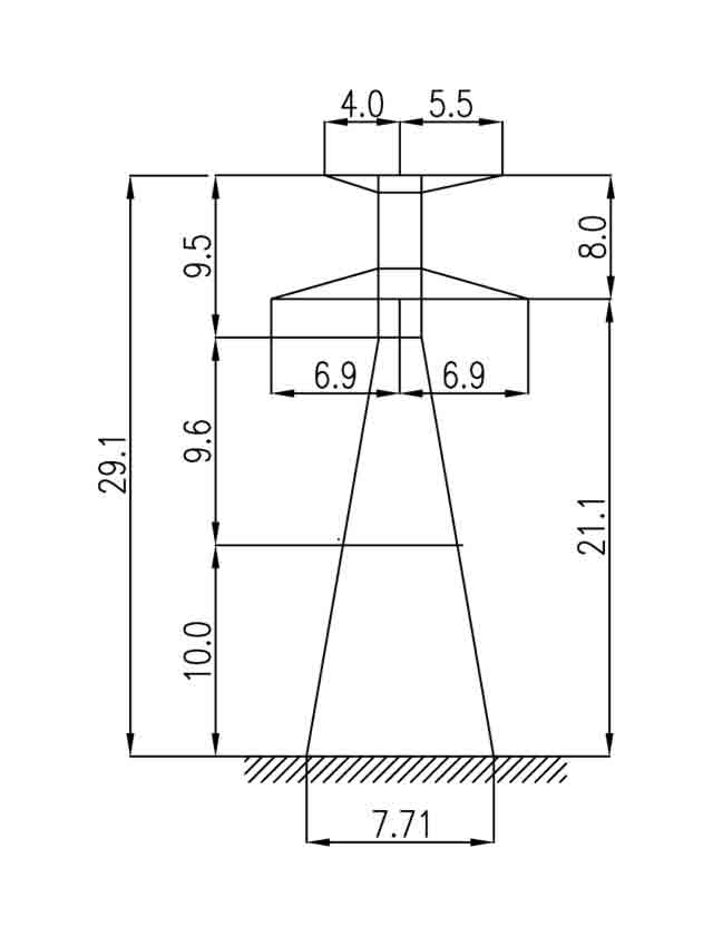
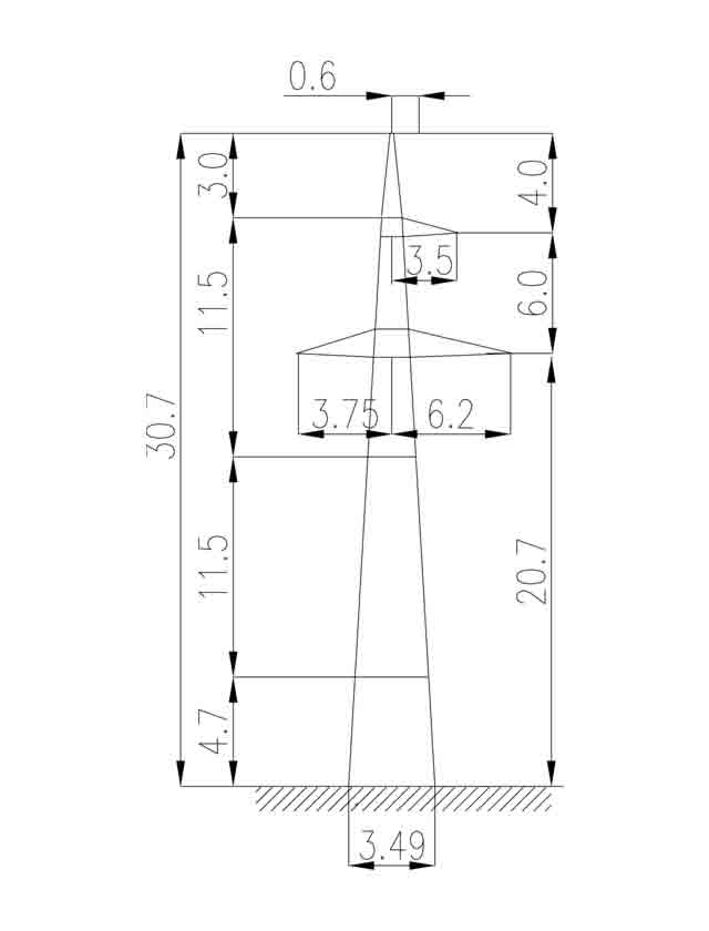
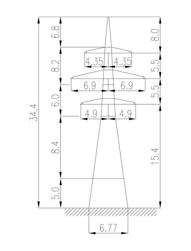
Переходные: Переходные опоры ЛЭП напряжением в 220 кВ служат для поддержки и крепления проводов и тросов на нужном расстоянии
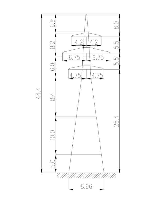
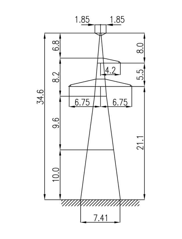
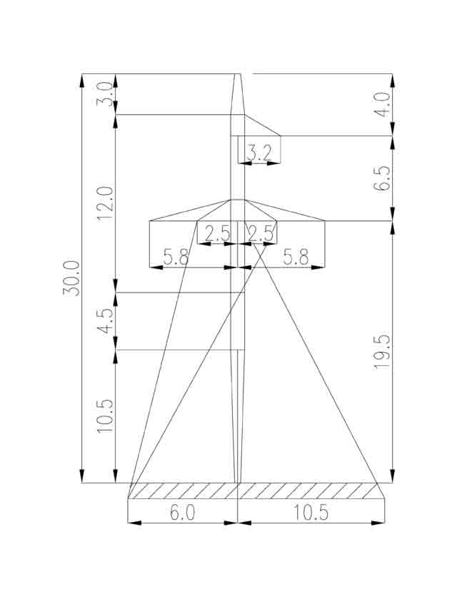
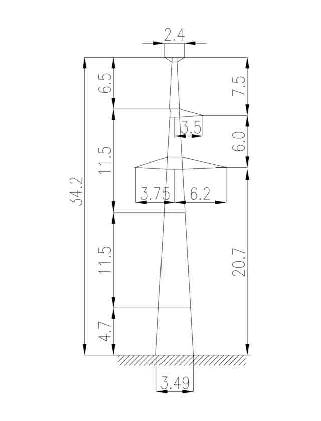
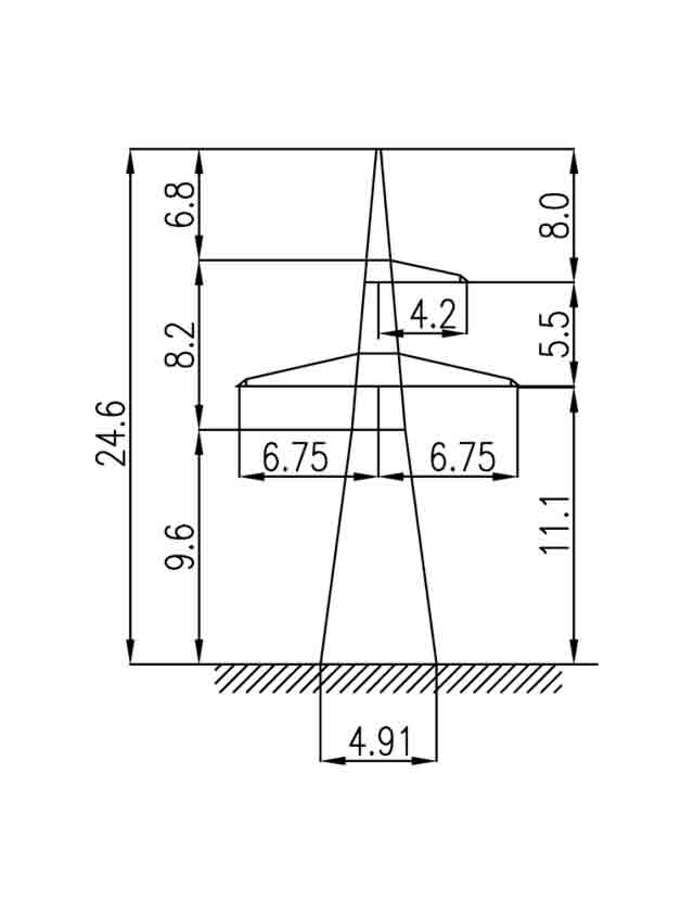
Промежуточные: Высоковольтные линии с напряжением 220 кВ служат для передачи энергии населённым пунктам и производственным предприятиям.
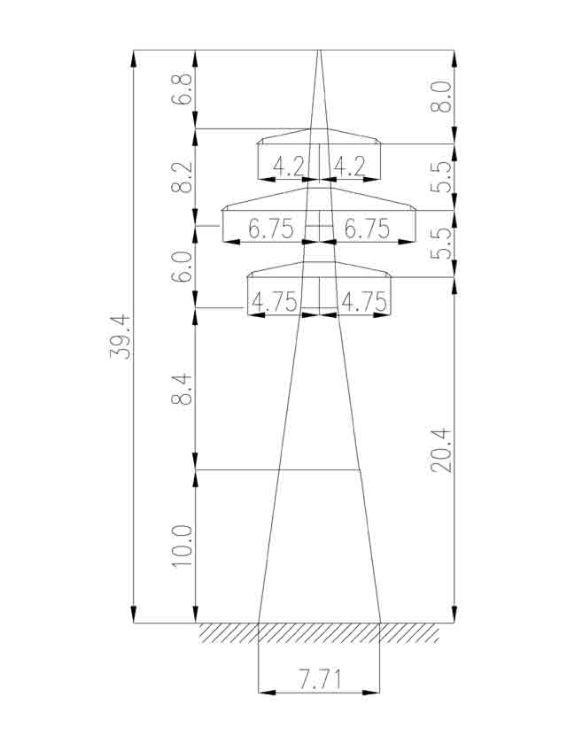
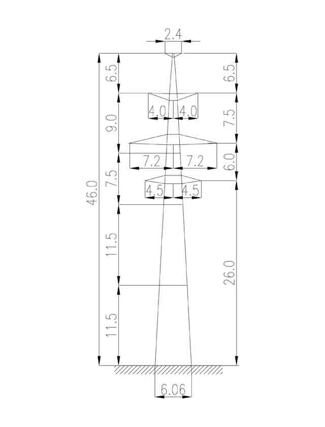
Концевые: Используются в ходе протягивания линий электропередачи между его потребителями и электростанциями.
| Марка опоры | Масса без окраски и цинкового покрытия, кг | Масса опоры с горячим цинковым покрытием, кг |
| 1П220-1 | 3429 | 3538 |
| 1П220-1-10.5 | 2801 | 2891 |
| 1П220-1-6.0 | 2955 | 3194 |
| 1П220-1+4.5 | 3734 | 3854 |
| 1П220-1Т | 3576 | 3693 |
| 1П220-1Т-10.5 | 2949 | 3044 |
| 1П220-1Т-6.0 | 3242 | 3348 |
| 1П220-1Т+4.5 | 3884 | 4009 |
| 1П220-2 | 5423 | 5635 |
| 1П220-2-11.5 | 3867 | 4018 |
| 1П220-2-4.9 | 4706 | 4890 |
| 1П220-2Т | 5570 | 5787 |
| 1П220-2Т-11.5 | 4013 | 4170 |
| 1П220-2Т-4.9 | 4854 | 5043 |
| 1У220-1 | 6895 | 7150 |
| 1У220-1+10 | 11226 | 11647 |
| 1У220-1+15 | 15179 | 15752 |
| 1У220-1+5 | 8856 | 9185 |
| 1У220-1Т | 7526 | 7805 |
| 1У220-1Т+10 | 12294 | |
| 1У220-1Т+15 | 15804 | 16400 |
| 1У220-1Т+5 | 9481 | 9834 |
| 1У220-2 | 10590 | 10980 |
| 1У220-2+10 | 15731 | 16316 |
| 1У220-2+15 | 19426 | 20152 |
| 1У220-2+5 | 13092 | 13576 |
| 1У220-2Т | 11187 | 11599 |
| 1У220-2Т+10 | 16331 | 16938 |
| 1У220-2Т+15 | 20026 | 20774 |
| 1У220-2Т+5 | 13690 | 14196 |
| 1У220-3 | 8534 | 8853 |
| 1У220-3+10 | 13344 | 13847 |
| 1У220-3+15 | 16805 | 17440 |
| 1У220-3+5 | 10832 | 11238 |
| 1У220-3Т | 9186 | 9529 |
| 1У220-3Т+10 | 13998 | 14525 |
| 1У220-3Т+15 | 17459 | 18120 |
| 1У220-3Т+5 | 11484 | 11914 |
| 1У220-4 | 13226 | 13708 |
| 1У220-4+10 | 19271 | |
| 1У220-4+15 | 22578 | 23415 |
| 1У220-4+5 | 15965 | 16551 |
| 1У220-4Т | 13848 | 14354 |
| 1У220-4Т+10 | 19210 | 19919 |
| 1У220-4Т+15 | 23202 | 24062 |
| 1У220-4Т+5 | 16587 | 17196 |
| 1У220-5 | 7282 | 7555 |
| 1У220-5+10 | 11873 | 12320 |
| 1У220-5+15 | 15349 | 15930 |
| 1У220-5+5 | 9566 | 9925 |
| 2П220-1 | 4396 | 4560 |
| 2П220-1-11.5 | 2959 | 3069 |
| 2П220-1-6.8 | 3561 | 3694 |
| 2П220-1Т | 4595 | 4767 |
| 2П220-1Т-11.5 | 3162 | 3279 |
| 2П220-1Т-6.8 | 3761 | 3901 |
| 2П220-2 | 6728 | 6976 |
| 2П220-2-11.5 | 4689 | 4861 |
| 2П220-2-5.0 | 5757 | 5969 |
| 2П220-2Т | 6876 | 7130 |
| 2П220-2Т-11.5 | 4836 | 5012 |
| 2П220-2Т-5.0 | 5905 | 6122 |
| 2П220-3 | 3909 | 4055 |
| 2П220-3-11.5 | 2618 | 2715 |
| 2П220-3-5.8 | 3199 | 3318 |
| 2П220-3Т | 4107 | 4251 |
| 2П220-3Т-11.5 | 2820 | 2924 |
| 2П220-3Т-5.8 | 2820 | 2924 |
| 2П220-7 | 3877 | 4001 |
| 2П220-7-10.5 | 3117 | 3214 |
| 2П220-7-6.0 | 3486 | 3597 |
| 2П220-7+4.5 | 4252 | 4388 |
| 2П220-7Т | 4025 | 4155 |
| 2П220-7Т-10.5 | 3265 | 3370 |
| 2П220-7Т-6.0 | 3750 | |
| 2П220-7Т+4.5 | 4400 | 4541 |
| 3П220-2 | 7120 | 7384 |
| 3П220-2-11.5 | 5047 | 5233 |
| 3П220-2-5.0 | 6141 | 6368 |
| 3П220-2Т | 7231 | 7500 |
| 3П220-2Т-11.5 | 5158 | 5350 |
| 3П220-2Т-5.0 | 6250 | 6481 |
| К220-1 | ||
| К220-2 | ||
| П220-1 | 3669 | 3812 |
| П220-1Т | П220-1Т | 3917 |
| П220-2 | 6208 | 6450 |
| П220-2+5 | 7645 | 7940 |
| П220-2Т | 6327 | 6573 |
| П220-2Т+5 | 7764 | 8065 |
| П220-3 | 4698 | 4881 |
| П220-3+5 | 5860 | 6088 |
| П220-3Т | 4876 | 5066 |
| П220-3Т+5 | 6039 | 6274 |
| П220-5 | П220-5 | 3540 |
| П220-5-10,5 | 2783 | 2875 |
| П220-5-6,0 | ||
| П220-5+4,5 | 3731 | 3852 |
| ПБ220-1 | ||
| ПВ220-1 | 3754 | 3900 |
| ПВ220-5 | 6027 | 6260 |
| ПП220-1/38 | 33682 | 35000 |
| ПП220-1/49 | 41862 | 43500 |
| ПП220-1/59 | 50524 | 52500 |
| ПП220-1/69 | 59666 | 62000 |
| ПП220-1/79 | 72177 | 75000 |
| ПП220-2/40 | 50043 | 52000 |
| ПП220-2/50 | 59667 | 62000 |
| ПП220-2/60 | 68328 | 71000 |
| ПП220-2/70 | 79876 | 83000 |
| ПС220-1 | 3132 | 3252 |
| ПС220-1Т | 3234 | 3359 |
| ПС220-2 | 5503 | 5717 |
| ПС220-2Т | 5624 | 5843 |
| ПС220-3 | 4056 | 4214 |
| ПС220-5 | 5575 | 5793 |
| ПС220-5Т | 5741 | 5965 |
| ПС220-6 | 8467 | 8798 |
| ПС220-6Т | 8546 | 8880 |
| ПС220-7 | 4247 | 4413 |
| ПС220-7Т | 4497 | 4672 |
| ПУС220-1 | ||
| ПУС220-1Т | 7128 | 7406 |
| ПУС220-2 | ||
| ПУС220-2Т | 10408 | 10815 |
| У220-1 | ||
| У220-1+14 | 16563 | 17209 |
| У220-1+5 | 11078 | 11510 |
| У220-1+9 | 12587 | 13078 |
| У220-10 | 11283 | 11723 |
| У220-10Т | 11712 | 12169 |
| У220-11 | 6200 | 6442 |
| У220-2 | 14398 | 14981 |
| У220-2+14 | 23383 | 24695 |
| У220-2+5 | 17603 | 18290 |
| У220-2+9 | 19486 | 20245 |
| У220-2Т | 14932 | 15493 |
| У220-2Т+14 | 24920 | 25890 |
| У220-2Т+5 | 18266 | 18924 |
| У220-2Т+9 | 20020 | 20801 |
| У220-3 | 7247 | 7530 |
| У220-3+14 | 15247 | 15840 |
| У220-3+5 | 9720 | 10099 |
| У220-3+9 | 11241 | 11680 |
| У220-7 | 6454 | 6706 |
| УВ220-1 | 7518 | 7811 |
| УВ220-1+9 | 10777 | 11198 |
| УВ220-3 | 9653 | 10030 |
| УВ220-3+9 | 13457 | 13990 |
| УС220-5 | 10831 | 11253 |
| УС220-5Т | 11379 | 11823 |
| УС220-6 | 18724 | 19454 |
| УС220-6Т | 19366 | 20140 |
База опоры, мм:
Высота траверсы, м:
Масса без окраски и цинкового покрытия, кг: 3429
Масса опоры с горячим цинковым покрытием, кг: 3538
База опоры, мм:
Высота траверсы, м:
Масса без окраски и цинкового покрытия, кг: 2801
Масса опоры с горячим цинковым покрытием, кг: 2891
База опоры, мм:
Высота траверсы, м:
Масса без окраски и цинкового покрытия, кг: 2955
Масса опоры с горячим цинковым покрытием, кг: 3194
База опоры, мм:
Высота траверсы, м:
Масса без окраски и цинкового покрытия, кг: 3734
Масса опоры с горячим цинковым покрытием, кг: 3854
База опоры, мм:
Высота траверсы, м:
Масса без окраски и цинкового покрытия, кг: 3576
Масса опоры с горячим цинковым покрытием, кг: 3693
База опоры, мм:
Высота траверсы, м:
Масса без окраски и цинкового покрытия, кг: 2949
Масса опоры с горячим цинковым покрытием, кг: 3044
База опоры, мм:
Высота траверсы, м:
Масса без окраски и цинкового покрытия, кг: 3242
Масса опоры с горячим цинковым покрытием, кг: 3348
База опоры, мм:
Высота траверсы, м:
Масса без окраски и цинкового покрытия, кг: 3884
Масса опоры с горячим цинковым покрытием, кг: 4009
База опоры, мм:
Высота траверсы, м:
Масса без окраски и цинкового покрытия, кг: 5423
Масса опоры с горячим цинковым покрытием, кг: 5635
База опоры, мм:
Высота траверсы, м:
Масса без окраски и цинкового покрытия, кг: 3867
Масса опоры с горячим цинковым покрытием, кг: 4018
База опоры, мм:
Высота траверсы, м:
Масса без окраски и цинкового покрытия, кг: 4706
Масса опоры с горячим цинковым покрытием, кг: 4890
База опоры, мм:
Высота траверсы, м:
Масса без окраски и цинкового покрытия, кг: 5570
Масса опоры с горячим цинковым покрытием, кг: 5787
База опоры, мм:
Высота траверсы, м:
Масса без окраски и цинкового покрытия, кг: 4013
Масса опоры с горячим цинковым покрытием, кг: 4170
База опоры, мм:
Высота траверсы, м:
Масса без окраски и цинкового покрытия, кг: 4854
Масса опоры с горячим цинковым покрытием, кг: 5043
База опоры, мм:
Высота траверсы, м:
Масса без окраски и цинкового покрытия, кг: 6895
Масса опоры с горячим цинковым покрытием, кг: 7150
База опоры, мм:
Высота траверсы, м:
Масса без окраски и цинкового покрытия, кг: 11226
Масса опоры с горячим цинковым покрытием, кг: 11647
База опоры, мм:
Высота траверсы, м:
Масса без окраски и цинкового покрытия, кг: 15179
Масса опоры с горячим цинковым покрытием, кг: 15752
База опоры, мм:
Высота траверсы, м:
Масса без окраски и цинкового покрытия, кг: 8856
Масса опоры с горячим цинковым покрытием, кг: 9185
База опоры, мм:
Высота траверсы, м:
Масса без окраски и цинкового покрытия, кг: 7526
Масса опоры с горячим цинковым покрытием, кг: 7805
База опоры, мм:
Высота траверсы, м:
Масса без окраски и цинкового покрытия, кг:
Масса опоры с горячим цинковым покрытием, кг: 12294
База опоры, мм:
Высота траверсы, м:
Масса без окраски и цинкового покрытия, кг: 15804
Масса опоры с горячим цинковым покрытием, кг: 16400
База опоры, мм:
Высота траверсы, м:
Масса без окраски и цинкового покрытия, кг: 9481
Масса опоры с горячим цинковым покрытием, кг: 9834
База опоры, мм:
Высота траверсы, м:
Масса без окраски и цинкового покрытия, кг: 10590
Масса опоры с горячим цинковым покрытием, кг: 10980
База опоры, мм:
Высота траверсы, м:
Масса без окраски и цинкового покрытия, кг: 15731
Масса опоры с горячим цинковым покрытием, кг: 16316
База опоры, мм:
Высота траверсы, м:
Масса без окраски и цинкового покрытия, кг: 19426
Масса опоры с горячим цинковым покрытием, кг: 20152
База опоры, мм:
Высота траверсы, м:
Масса без окраски и цинкового покрытия, кг: 13092
Масса опоры с горячим цинковым покрытием, кг: 13576
База опоры, мм:
Высота траверсы, м:
Масса без окраски и цинкового покрытия, кг: 11187
Масса опоры с горячим цинковым покрытием, кг: 11599
База опоры, мм:
Высота траверсы, м:
Масса без окраски и цинкового покрытия, кг: 16331
Масса опоры с горячим цинковым покрытием, кг: 16938
База опоры, мм:
Высота траверсы, м:
Масса без окраски и цинкового покрытия, кг: 20026
Масса опоры с горячим цинковым покрытием, кг: 20774
База опоры, мм:
Высота траверсы, м:
Масса без окраски и цинкового покрытия, кг: 13690
Масса опоры с горячим цинковым покрытием, кг: 14196
База опоры, мм:
Высота траверсы, м:
Масса без окраски и цинкового покрытия, кг: 8534
Масса опоры с горячим цинковым покрытием, кг: 8853
База опоры, мм:
Высота траверсы, м:
Масса без окраски и цинкового покрытия, кг: 13344
Масса опоры с горячим цинковым покрытием, кг: 13847
База опоры, мм:
Высота траверсы, м:
Масса без окраски и цинкового покрытия, кг: 16805
Масса опоры с горячим цинковым покрытием, кг: 17440
База опоры, мм:
Высота траверсы, м:
Масса без окраски и цинкового покрытия, кг: 10832
Масса опоры с горячим цинковым покрытием, кг: 11238
База опоры, мм:
Высота траверсы, м:
Масса без окраски и цинкового покрытия, кг: 9186
Масса опоры с горячим цинковым покрытием, кг: 9529
База опоры, мм:
Высота траверсы, м:
Масса без окраски и цинкового покрытия, кг: 13998
Масса опоры с горячим цинковым покрытием, кг: 14525
База опоры, мм:
Высота траверсы, м:
Масса без окраски и цинкового покрытия, кг: 17459
Масса опоры с горячим цинковым покрытием, кг: 18120
База опоры, мм:
Высота траверсы, м:
Масса без окраски и цинкового покрытия, кг: 11484
Масса опоры с горячим цинковым покрытием, кг: 11914
База опоры, мм:
Высота траверсы, м:
Масса без окраски и цинкового покрытия, кг: 13226
Масса опоры с горячим цинковым покрытием, кг: 13708
База опоры, мм:
Высота траверсы, м:
Масса без окраски и цинкового покрытия, кг:
Масса опоры с горячим цинковым покрытием, кг: 19271
База опоры, мм:
Высота траверсы, м:
Масса без окраски и цинкового покрытия, кг: 22578
Масса опоры с горячим цинковым покрытием, кг: 23415
База опоры, мм:
Высота траверсы, м:
Масса без окраски и цинкового покрытия, кг: 15965
Масса опоры с горячим цинковым покрытием, кг: 16551
База опоры, мм:
Высота траверсы, м:
Масса без окраски и цинкового покрытия, кг: 13848
Масса опоры с горячим цинковым покрытием, кг: 14354
База опоры, мм:
Высота траверсы, м:
Масса без окраски и цинкового покрытия, кг: 19210
Масса опоры с горячим цинковым покрытием, кг: 19919
База опоры, мм:
Высота траверсы, м:
Масса без окраски и цинкового покрытия, кг: 23202
Масса опоры с горячим цинковым покрытием, кг: 24062
База опоры, мм:
Высота траверсы, м:
Масса без окраски и цинкового покрытия, кг: 16587
Масса опоры с горячим цинковым покрытием, кг: 17196
База опоры, мм:
Высота траверсы, м:
Масса без окраски и цинкового покрытия, кг: 7282
Масса опоры с горячим цинковым покрытием, кг: 7555
База опоры, мм:
Высота траверсы, м:
Масса без окраски и цинкового покрытия, кг: 11873
Масса опоры с горячим цинковым покрытием, кг: 12320
База опоры, мм:
Высота траверсы, м:
Масса без окраски и цинкового покрытия, кг: 15349
Масса опоры с горячим цинковым покрытием, кг: 15930
База опоры, мм:
Высота траверсы, м:
Масса без окраски и цинкового покрытия, кг: 9566
Масса опоры с горячим цинковым покрытием, кг: 9925
База опоры, мм:
Высота траверсы, м:
Масса без окраски и цинкового покрытия, кг: 4396
Масса опоры с горячим цинковым покрытием, кг: 4560
База опоры, мм:
Высота траверсы, м:
Масса без окраски и цинкового покрытия, кг: 2959
Масса опоры с горячим цинковым покрытием, кг: 3069
База опоры, мм:
Высота траверсы, м:
Масса без окраски и цинкового покрытия, кг: 3561
Масса опоры с горячим цинковым покрытием, кг: 3694
База опоры, мм:
Высота траверсы, м:
Масса без окраски и цинкового покрытия, кг: 4595
Масса опоры с горячим цинковым покрытием, кг: 4767
База опоры, мм:
Высота траверсы, м:
Масса без окраски и цинкового покрытия, кг: 3162
Масса опоры с горячим цинковым покрытием, кг: 3279
База опоры, мм:
Высота траверсы, м:
Масса без окраски и цинкового покрытия, кг: 3761
Масса опоры с горячим цинковым покрытием, кг: 3901
База опоры, мм:
Высота траверсы, м:
Масса без окраски и цинкового покрытия, кг: 6728
Масса опоры с горячим цинковым покрытием, кг: 6976
База опоры, мм:
Высота траверсы, м:
Масса без окраски и цинкового покрытия, кг: 4689
Масса опоры с горячим цинковым покрытием, кг: 4861
База опоры, мм:
Высота траверсы, м:
Масса без окраски и цинкового покрытия, кг: 5757
Масса опоры с горячим цинковым покрытием, кг: 5969
База опоры, мм:
Высота траверсы, м:
Масса без окраски и цинкового покрытия, кг: 6876
Масса опоры с горячим цинковым покрытием, кг: 7130
База опоры, мм:
Высота траверсы, м:
Масса без окраски и цинкового покрытия, кг: 4836
Масса опоры с горячим цинковым покрытием, кг: 5012
База опоры, мм:
Высота траверсы, м:
Масса без окраски и цинкового покрытия, кг: 5905
Масса опоры с горячим цинковым покрытием, кг: 6122
База опоры, мм:
Высота траверсы, м:
Масса без окраски и цинкового покрытия, кг: 3909
Масса опоры с горячим цинковым покрытием, кг: 4055
База опоры, мм:
Высота траверсы, м:
Масса без окраски и цинкового покрытия, кг: 2618
Масса опоры с горячим цинковым покрытием, кг: 2715
База опоры, мм:
Высота траверсы, м:
Масса без окраски и цинкового покрытия, кг: 3199
Масса опоры с горячим цинковым покрытием, кг: 3318
База опоры, мм:
Высота траверсы, м:
Масса без окраски и цинкового покрытия, кг: 4107
Масса опоры с горячим цинковым покрытием, кг: 4251
База опоры, мм:
Высота траверсы, м:
Масса без окраски и цинкового покрытия, кг: 2820
Масса опоры с горячим цинковым покрытием, кг: 2924
База опоры, мм:
Высота траверсы, м:
Масса без окраски и цинкового покрытия, кг: 2820
Масса опоры с горячим цинковым покрытием, кг: 2924
База опоры, мм:
Высота траверсы, м:
Масса без окраски и цинкового покрытия, кг: 3877
Масса опоры с горячим цинковым покрытием, кг: 4001
База опоры, мм:
Высота траверсы, м:
Масса без окраски и цинкового покрытия, кг: 3117
Масса опоры с горячим цинковым покрытием, кг: 3214
База опоры, мм:
Высота траверсы, м:
Масса без окраски и цинкового покрытия, кг: 3486
Масса опоры с горячим цинковым покрытием, кг: 3597
База опоры, мм:
Высота траверсы, м:
Масса без окраски и цинкового покрытия, кг: 4252
Масса опоры с горячим цинковым покрытием, кг: 4388
База опоры, мм:
Высота траверсы, м:
Масса без окраски и цинкового покрытия, кг: 4025
Масса опоры с горячим цинковым покрытием, кг: 4155
База опоры, мм:
Высота траверсы, м:
Масса без окраски и цинкового покрытия, кг: 3265
Масса опоры с горячим цинковым покрытием, кг: 3370
База опоры, мм:
Высота траверсы, м:
Масса без окраски и цинкового покрытия, кг:
Масса опоры с горячим цинковым покрытием, кг: 3750
База опоры, мм:
Высота траверсы, м:
Масса без окраски и цинкового покрытия, кг: 4400
Масса опоры с горячим цинковым покрытием, кг: 4541
База опоры, мм:
Высота траверсы, м:
Масса без окраски и цинкового покрытия, кг: 7120
Масса опоры с горячим цинковым покрытием, кг: 7384
База опоры, мм:
Высота траверсы, м:
Масса без окраски и цинкового покрытия, кг: 5047
Масса опоры с горячим цинковым покрытием, кг: 5233
База опоры, мм:
Высота траверсы, м:
Масса без окраски и цинкового покрытия, кг: 6141
Масса опоры с горячим цинковым покрытием, кг: 6368
База опоры, мм:
Высота траверсы, м:
Масса без окраски и цинкового покрытия, кг: 7231
Масса опоры с горячим цинковым покрытием, кг: 7500
База опоры, мм:
Высота траверсы, м:
Масса без окраски и цинкового покрытия, кг: 5158
Масса опоры с горячим цинковым покрытием, кг: 5350
База опоры, мм:
Высота траверсы, м:
Масса без окраски и цинкового покрытия, кг: 6250
Масса опоры с горячим цинковым покрытием, кг: 6481
База опоры, мм:
Высота траверсы, м:
Масса без окраски и цинкового покрытия, кг:
Масса опоры с горячим цинковым покрытием, кг:
База опоры, мм:
Высота траверсы, м:
Масса без окраски и цинкового покрытия, кг:
Масса опоры с горячим цинковым покрытием, кг:
База опоры, мм:
Высота траверсы, м:
Масса без окраски и цинкового покрытия, кг: 3669
Масса опоры с горячим цинковым покрытием, кг: 3812
База опоры, мм:
Высота траверсы, м:
Масса без окраски и цинкового покрытия, кг: П220-1Т
Масса опоры с горячим цинковым покрытием, кг: 3917
База опоры, мм:
Высота траверсы, м:
Масса без окраски и цинкового покрытия, кг: 6208
Масса опоры с горячим цинковым покрытием, кг: 6450
База опоры, мм:
Высота траверсы, м:
Масса без окраски и цинкового покрытия, кг: 7645
Масса опоры с горячим цинковым покрытием, кг: 7940
База опоры, мм:
Высота траверсы, м:
Масса без окраски и цинкового покрытия, кг: 6327
Масса опоры с горячим цинковым покрытием, кг: 6573
База опоры, мм:
Высота траверсы, м:
Масса без окраски и цинкового покрытия, кг: 7764
Масса опоры с горячим цинковым покрытием, кг: 8065
База опоры, мм:
Высота траверсы, м:
Масса без окраски и цинкового покрытия, кг: 4698
Масса опоры с горячим цинковым покрытием, кг: 4881
База опоры, мм:
Высота траверсы, м:
Масса без окраски и цинкового покрытия, кг: 5860
Масса опоры с горячим цинковым покрытием, кг: 6088
База опоры, мм:
Высота траверсы, м:
Масса без окраски и цинкового покрытия, кг: 4876
Масса опоры с горячим цинковым покрытием, кг: 5066
База опоры, мм:
Высота траверсы, м:
Масса без окраски и цинкового покрытия, кг: 6039
Масса опоры с горячим цинковым покрытием, кг: 6274
База опоры, мм:
Высота траверсы, м:
Масса без окраски и цинкового покрытия, кг: П220-5
Масса опоры с горячим цинковым покрытием, кг: 3540
База опоры, мм:
Высота траверсы, м:
Масса без окраски и цинкового покрытия, кг: 2783
Масса опоры с горячим цинковым покрытием, кг: 2875
База опоры, мм:
Высота траверсы, м:
Масса без окраски и цинкового покрытия, кг: 3731
Масса опоры с горячим цинковым покрытием, кг: 3852
База опоры, мм:
Высота траверсы, м:
Масса без окраски и цинкового покрытия, кг:
Масса опоры с горячим цинковым покрытием, кг:
База опоры, мм:
Высота траверсы, м:
Масса без окраски и цинкового покрытия, кг: 3754
Масса опоры с горячим цинковым покрытием, кг: 3900
База опоры, мм:
Высота траверсы, м:
Масса без окраски и цинкового покрытия, кг: 6027
Масса опоры с горячим цинковым покрытием, кг: 6260
База опоры, мм: 6100
Высота траверсы, м: 38
Масса без окраски и цинкового покрытия, кг: 33682
Масса опоры с горячим цинковым покрытием, кг: 35000
База опоры, мм: 7000
Высота траверсы, м: 49
Масса без окраски и цинкового покрытия, кг: 41862
Масса опоры с горячим цинковым покрытием, кг: 43500
База опоры, мм: 8800
Высота траверсы, м: 59
Масса без окраски и цинкового покрытия, кг: 50524
Масса опоры с горячим цинковым покрытием, кг: 52500
База опоры, мм: 10700
Высота траверсы, м: 69
Масса без окраски и цинкового покрытия, кг: 59666
Масса опоры с горячим цинковым покрытием, кг: 62000
База опоры, мм: 12500
Высота траверсы, м: 79
Масса без окраски и цинкового покрытия, кг: 72177
Масса опоры с горячим цинковым покрытием, кг: 75000
База опоры, мм: 7000
Высота траверсы, м: 40
Масса без окраски и цинкового покрытия, кг: 50043
Масса опоры с горячим цинковым покрытием, кг: 52000
База опоры, мм: 8800
Высота траверсы, м: 50
Масса без окраски и цинкового покрытия, кг: 59667
Масса опоры с горячим цинковым покрытием, кг: 62000
База опоры, мм: 10700
Высота траверсы, м: 60
Масса без окраски и цинкового покрытия, кг: 68328
Масса опоры с горячим цинковым покрытием, кг: 71000
База опоры, мм: 12500
Высота траверсы, м: 70
Масса без окраски и цинкового покрытия, кг: 79876
Масса опоры с горячим цинковым покрытием, кг: 83000
База опоры, мм:
Высота траверсы, м:
Масса без окраски и цинкового покрытия, кг: 3132
Масса опоры с горячим цинковым покрытием, кг: 3252
База опоры, мм:
Высота траверсы, м:
Масса без окраски и цинкового покрытия, кг: 3234
Масса опоры с горячим цинковым покрытием, кг: 3359
База опоры, мм:
Высота траверсы, м:
Масса без окраски и цинкового покрытия, кг: 5503
Масса опоры с горячим цинковым покрытием, кг: 5717
База опоры, мм:
Высота траверсы, м:
Масса без окраски и цинкового покрытия, кг: 5624
Масса опоры с горячим цинковым покрытием, кг: 5843
База опоры, мм:
Высота траверсы, м:
Масса без окраски и цинкового покрытия, кг: 4056
Масса опоры с горячим цинковым покрытием, кг: 4214
База опоры, мм:
Высота траверсы, м:
Масса без окраски и цинкового покрытия, кг: 5575
Масса опоры с горячим цинковым покрытием, кг: 5793
База опоры, мм:
Высота траверсы, м:
Масса без окраски и цинкового покрытия, кг: 5741
Масса опоры с горячим цинковым покрытием, кг: 5965
База опоры, мм: 4100
Высота траверсы, м:
Масса без окраски и цинкового покрытия, кг: 8467
Масса опоры с горячим цинковым покрытием, кг: 8798
База опоры, мм: 4100
Высота траверсы, м:
Масса без окраски и цинкового покрытия, кг: 8546
Масса опоры с горячим цинковым покрытием, кг: 8880
База опоры, мм:
Высота траверсы, м:
Масса без окраски и цинкового покрытия, кг: 4247
Масса опоры с горячим цинковым покрытием, кг: 4413
База опоры, мм:
Высота траверсы, м:
Масса без окраски и цинкового покрытия, кг: 4497
Масса опоры с горячим цинковым покрытием, кг: 4672
База опоры, мм:
Высота траверсы, м:
Масса без окраски и цинкового покрытия, кг: 7128
Масса опоры с горячим цинковым покрытием, кг: 7406
База опоры, мм:
Высота траверсы, м:
Масса без окраски и цинкового покрытия, кг: 10408
Масса опоры с горячим цинковым покрытием, кг: 10815
База опоры, мм:
Высота траверсы, м:
Масса без окраски и цинкового покрытия, кг:
Масса опоры с горячим цинковым покрытием, кг:
База опоры, мм:
Высота траверсы, м:
Масса без окраски и цинкового покрытия, кг: 16563
Масса опоры с горячим цинковым покрытием, кг: 17209
База опоры, мм:
Высота траверсы, м:
Масса без окраски и цинкового покрытия, кг: 11078
Масса опоры с горячим цинковым покрытием, кг: 11510
База опоры, мм:
Высота траверсы, м:
Масса без окраски и цинкового покрытия, кг: 12587
Масса опоры с горячим цинковым покрытием, кг: 13078
База опоры, мм:
Высота траверсы, м:
Масса без окраски и цинкового покрытия, кг: 11283
Масса опоры с горячим цинковым покрытием, кг: 11723
База опоры, мм:
Высота траверсы, м:
Масса без окраски и цинкового покрытия, кг: 11712
Масса опоры с горячим цинковым покрытием, кг: 12169
База опоры, мм:
Высота траверсы, м:
Масса без окраски и цинкового покрытия, кг: 6200
Масса опоры с горячим цинковым покрытием, кг: 6442
База опоры, мм: 5200
Высота траверсы, м:
Масса без окраски и цинкового покрытия, кг: 14398
Масса опоры с горячим цинковым покрытием, кг: 14981
База опоры, мм: 9400
Высота траверсы, м:
Масса без окраски и цинкового покрытия, кг: 23383
Масса опоры с горячим цинковым покрытием, кг: 24695
База опоры, мм: 6700
Высота траверсы, м:
Масса без окраски и цинкового покрытия, кг: 17603
Масса опоры с горячим цинковым покрытием, кг: 18290
База опоры, мм: 7900
Высота траверсы, м:
Масса без окраски и цинкового покрытия, кг: 19486
Масса опоры с горячим цинковым покрытием, кг: 20245
База опоры, мм:
Высота траверсы, м:
Масса без окраски и цинкового покрытия, кг: 14932
Масса опоры с горячим цинковым покрытием, кг: 15493
База опоры, мм:
Высота траверсы, м:
Масса без окраски и цинкового покрытия, кг: 24920
Масса опоры с горячим цинковым покрытием, кг: 25890
База опоры, мм:
Высота траверсы, м:
Масса без окраски и цинкового покрытия, кг: 18266
Масса опоры с горячим цинковым покрытием, кг: 18924
База опоры, мм:
Высота траверсы, м:
Масса без окраски и цинкового покрытия, кг: 20020
Масса опоры с горячим цинковым покрытием, кг: 20801
База опоры, мм: 5200
Высота траверсы, м:
Масса без окраски и цинкового покрытия, кг: 7247
Масса опоры с горячим цинковым покрытием, кг: 7530
База опоры, мм: 9400
Высота траверсы, м:
Масса без окраски и цинкового покрытия, кг: 15247
Масса опоры с горячим цинковым покрытием, кг: 15840
База опоры, мм: 6700
Высота траверсы, м:
Масса без окраски и цинкового покрытия, кг: 9720
Масса опоры с горячим цинковым покрытием, кг: 10099
База опоры, мм: 7900
Высота траверсы, м:
Масса без окраски и цинкового покрытия, кг: 11241
Масса опоры с горячим цинковым покрытием, кг: 11680
База опоры, мм:
Высота траверсы, м:
Масса без окраски и цинкового покрытия, кг: 6454
Масса опоры с горячим цинковым покрытием, кг: 6706
База опоры, мм:
Высота траверсы, м:
Масса без окраски и цинкового покрытия, кг: 7518
Масса опоры с горячим цинковым покрытием, кг: 7811
База опоры, мм:
Высота траверсы, м:
Масса без окраски и цинкового покрытия, кг: 10777
Масса опоры с горячим цинковым покрытием, кг: 11198
База опоры, мм:
Высота траверсы, м:
Масса без окраски и цинкового покрытия, кг: 9653
Масса опоры с горячим цинковым покрытием, кг: 10030
База опоры, мм:
Высота траверсы, м:
Масса без окраски и цинкового покрытия, кг: 13457
Масса опоры с горячим цинковым покрытием, кг: 13990
База опоры, мм:
Высота траверсы, м:
Масса без окраски и цинкового покрытия, кг: 10831
Масса опоры с горячим цинковым покрытием, кг: 11253
База опоры, мм:
Высота траверсы, м:
Масса без окраски и цинкового покрытия, кг: 11379
Масса опоры с горячим цинковым покрытием, кг: 11823
База опоры, мм:
Высота траверсы, м:
Масса без окраски и цинкового покрытия, кг: 18724
Масса опоры с горячим цинковым покрытием, кг: 19454
База опоры, мм:
Высота траверсы, м:
Масса без окраски и цинкового покрытия, кг: 19366
Масса опоры с горячим цинковым покрытием, кг: 20140
Анкерные опоры напряжением 35 кВ предназначены для натяжения и закрепления линий. Они имеют более жёсткую и сложную конструкцию.
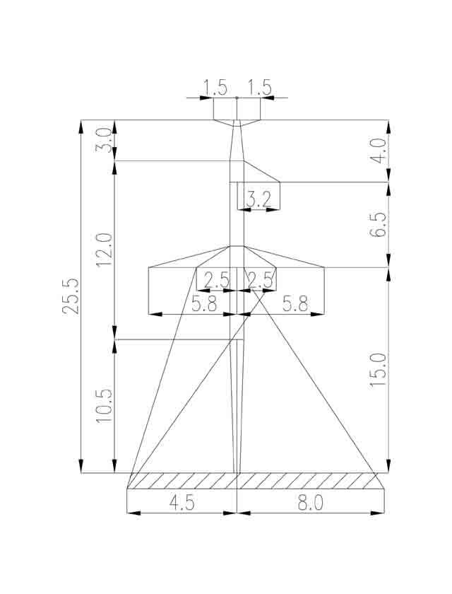
Промежуточные опоры ЛЭП напряжением в 35 кВ являются связующим звеном между высоковольтными магистралями и значением, необходимым для обычных потребителей.
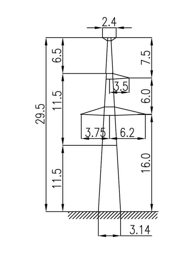
Высоковольтные линии с напряжением 110 кВ служат для передачи энергии населённым пунктам и производственным предприятиям.
Производятся согласно типового проекта 3.407.2-168, и используются для строительства воздушных ЛЭП 110 кВ.
Высоковольтные линии с напряжением 110 кВ служат для передачи энергии населённым пунктам и производственным предприятиям.
Анкерные угловые опоры воздушных линий 220 кВ производятся и устанавливаются для крепления и натяжения тросов и проводов при поворотах.
Используются в ходе протягивания линий электропередачи между его потребителями и электростанциями.
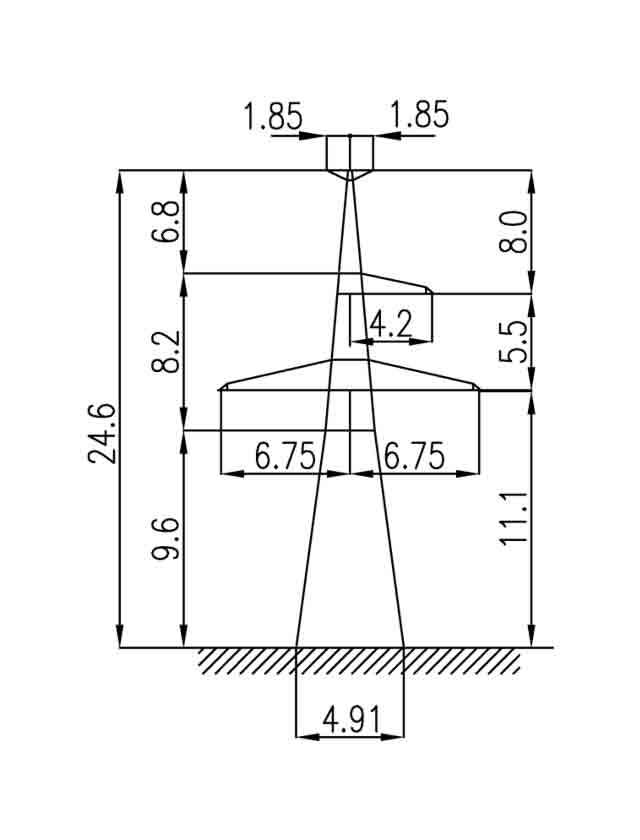
Переходные опоры ЛЭП напряжением в 220 кВ служат для поддержки и крепления проводов и тросов на нужном расстоянии.
Высоковольтные линии с напряжением 220 кВ служат для передачи энергии населённым пунктам и производственным предприятиям.
Линии напряжением 330 кВ служат для распределения электроэнергии внутри крупных энергосистем, для снабжения электроэнергией удалённых или крупных потребителей.
Это элемент воздушной линии электропередач, функцией которых является восприятие создаваемых нормальным односторонним натяжением проводов усилий, направленных вдоль линий в Алма-ате.
Линии напряжением 330 кВ служат для распределения электроэнергии внутри крупных энергосистем.
Они предназначены для крепления и поддержки проводов и тросов на определённом уровне относительно друг друга и земли. Служат для передачи тока напряжением от 35 кВ и выше.
Производство, изготовление анкерно-угловых опор ВЛ 400 кВ на заводе «Энергостальконструкция».
Высоковольтные линии с напряжением 400 кВ служат для передачи энергии населённым пунктам и производственным предприятиям.
Напряжение в 500 кВ необходимо для обеспечения электроэнергией крупных потребителей и передачи её на длительные расстояния.
Линии напряжением в 500кВ необходимы для создания единой энергетической системы по всей стране, для распределения мощности для крупных электростанций и снабжения электроэнергией крупных или энергоёмких предприятий.
Рассчитаны для строительства ВЛ 750кВ в регионах с различными гололедно — ветровыми нагрузками.