Металлические опоры ЛЭП Стальные порталы ору Прожекторные мачты и молниеотводы Ростверки и металлические балки Антенные опоры и башни релейной связи Металлоконструкции различного назначения
35 кВ 110 кВ 220 кВ 330кВ 400 кВ 500 кВ 750 кВ
Анкерно-угловые Концевые Переходные Промежуточные

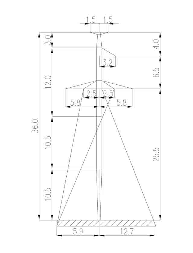
1П220-1Т

Шифр опоры 1П220-1Т
Тип опоры Промежуточная
Цепность Одноцепная
Типовая серия 3.407.2-165.1 09КМ, СЗО ЭСП
Марка проводов АС 240/32 — АС 400/51
Марка троса С70 (ТК-11)
Масса опоры по черт. КМ без цинка в кг 3576
Масса опоры по черт. КМ с цинком в кг 3693

Цены на опоры 1П220-1Т в Алма-ате могут различаться, в зависимости от марки стали металлоконструкций и антикоррозийного покрытия. Вес опоры 1П220-1Т без цинкового покрытия 3576 кг, с цинковым покрытием методом горячего цинкования 3693 кг. Опора 1П220-1Т изготавливается по типовой серии 3.407.2-165.1 09КМ, СЗО ЭСП. По цепности — одноцепная, по типу — промежуточная, марка троса — С70 (ТК-11), марка проводов — АС 240/32 — АС 400/51. Все металлические опоры комплектуются оцинкованными метизами.

    Заполните поля и мы с Вами свяжемся!






    Нажмите «Принять», если вы соглашаетесь с условиями обработки cookie и данных о поведении на сайте, нужных нам для аналитики. Запретить обработку cookie можете через браузер.
    Принять