Металлические опоры ЛЭП Стальные порталы ору Прожекторные мачты и молниеотводы Ростверки и металлические балки Антенные опоры и башни релейной связи Металлоконструкции различного назначения
35 кВ 110 кВ 220 кВ 330кВ 400 кВ 500 кВ 750 кВ
Анкерно-угловые Концевые Переходные Промежуточные

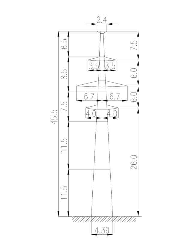
1П220-2Т

Шифр опоры 1П220-2Т
Тип опоры Промежуточная
Цепность Двухцепная
Марка проводов АС240/32
Марка троса С70 (ТК-11)
№ чертежа монтажной схемы 3.407.2-145.1 09КМ, СЗО ЭСП
Масса опоры по черт. КМ без цинка в кг 5570
Масса опоры по черт. КМ с цинком в кг 5787

Цены на опоры 1П220-2Т в Алма-ате могут различаться, в зависимости от марки стали металлоконструкций и антикоррозийного покрытия. Вес опоры 1П220-2Т без антикоррозийного покрытия 5570 кг, вес опоры с антикоррозийным покрытием методом горячего цинкования 5787 кг. Все опоры 1П220-2Т изготавливаются по типовому проекту 3.407.2-145.1 09КМ, СЗО ЭСП, тип опоры — промежуточная, цепность — двухцепная, марка проводов АС240/32, марка троса С70 (ТК-11). Все металлические опоры комплектуются оцинкованными метизами.

    Заполните поля и мы с Вами свяжемся!






    Нажмите «Принять», если вы соглашаетесь с условиями обработки cookie и данных о поведении на сайте, нужных нам для аналитики. Запретить обработку cookie можете через браузер.
    Принять