Металлические опоры ЛЭП Стальные порталы ору Прожекторные мачты и молниеотводы Ростверки и металлические балки Антенные опоры и башни релейной связи Металлоконструкции различного назначения
35 кВ 110 кВ 220 кВ 330кВ 400 кВ 500 кВ 750 кВ
Анкерно-угловые Концевые Переходные Промежуточные

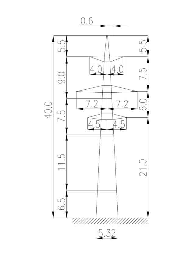
3П220-2-5.0

Шифр опоры 3П220-2-5.0
Тип опоры Промежуточная
Цепность Двухцепная
Марка троса C70 (ТК-11)
Марка проводов АС240/32, АС400/51
№ чертежа монтажной схемы 3.407.2-156.2 01КМ, СЗО ЭСП
Масса опоры по черт. КМ без цинка в кг 6141
Масса опоры по черт. КМ с цинком в кг 6368

Цены на опоры 3П220-2-5.0 в Алма-ате могут различаться, в зависимости от марки стали металлоконструкций и антикоррозийного покрытия. Масса опоры 3П220-2-5.0 без антикоррозийного покрытия 6141 кг, масса с горячим цинковым покрытием 6368 кг. Марка троса C70 (ТК-11), марка проводов АС240/32, АС400/51. По типу — промежуточная, по цепности — двухцепная. Опора 3П220-2-5.0 изготавливается по типовому проекту 3.407.2-156.2 01КМ, СЗО ЭСП. Опоры 220 кВ комплектуются оцинкованными метизами.

    Заполните поля и мы с Вами свяжемся!






    Нажмите «Принять», если вы соглашаетесь с условиями обработки cookie и данных о поведении на сайте, нужных нам для аналитики. Запретить обработку cookie можете через браузер.
    Принять