Металлические опоры ЛЭП Стальные порталы ору Прожекторные мачты и молниеотводы Ростверки и металлические балки Антенные опоры и башни релейной связи Металлоконструкции различного назначения
35 кВ 110 кВ 220 кВ 330кВ 400 кВ 500 кВ 750 кВ
Анкерно-угловые Концевые Переходные Промежуточные

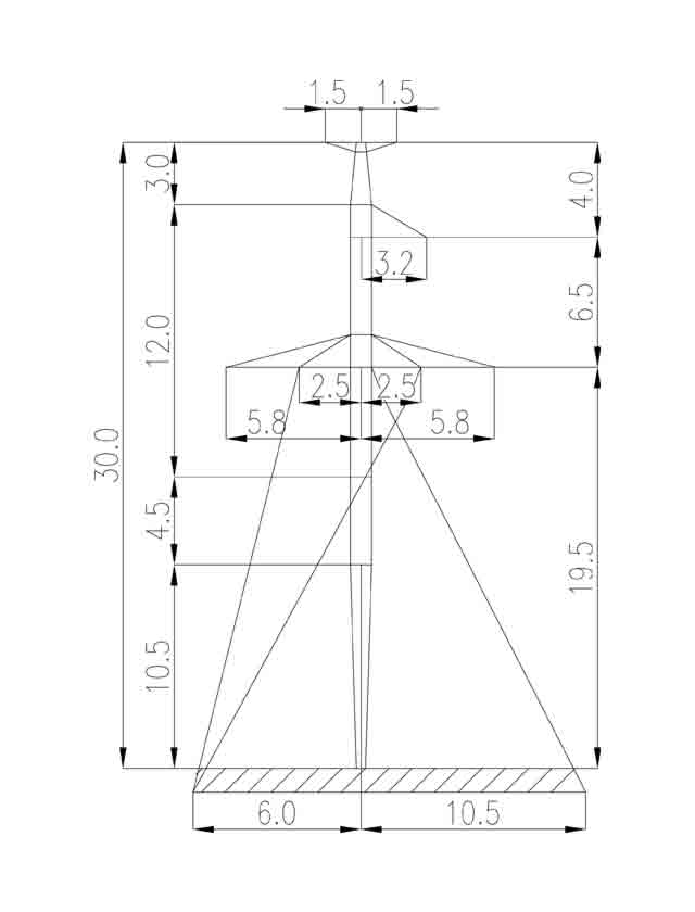
2П220-7Т-6.0

Шифр опоры 2П220-7Т-6.0
Тип опоры Промежуточная
Цепность Одноцепная
Марка проводов АС240/32, АС400/51
Марка троса С70 (ТК-11)
№ чертежа монтажной схемы 3.407.2-165.1 18КМ, СЗО ЭСП
Масса опоры по черт. КМ без цинка в кг 3633
Масса опоры по черт. КМ с цинком в кг 3750

Цены на опоры 2П220-7Т-6.0 в Алма-ате могут различаться, в зависимости от марки стали металлоконструкций и антикоррозийного покрытия. Масса опоры 2П220-7Т-6.0 без покрытия 3633 кг, с горячим покрытием 3750 кг. По цепности опора — одноцепная, по типу — промежуточная. Марка проводов АС240/32, АС400/51, марка троса С70 (ТК-11). Опора 2П220-7Т-6.0 изготавливается по чертежной монтажной схеме № 3.407.2-165.1 18КМ, СЗО ЭСП. Все металлические опоры проходят контроль качества. Заказы также отгружаем в страны ближнего зарубежья.

    Заполните поля и мы с Вами свяжемся!






    Нажмите «Принять», если вы соглашаетесь с условиями обработки cookie и данных о поведении на сайте, нужных нам для аналитики. Запретить обработку cookie можете через браузер.
    Принять