Металлические опоры ЛЭП Стальные порталы ору Прожекторные мачты и молниеотводы Ростверки и металлические балки Антенные опоры и башни релейной связи Металлоконструкции различного назначения
35 кВ 110 кВ 220 кВ 330кВ 400 кВ 500 кВ 750 кВ
Анкерно-угловые Концевые Переходные Промежуточные

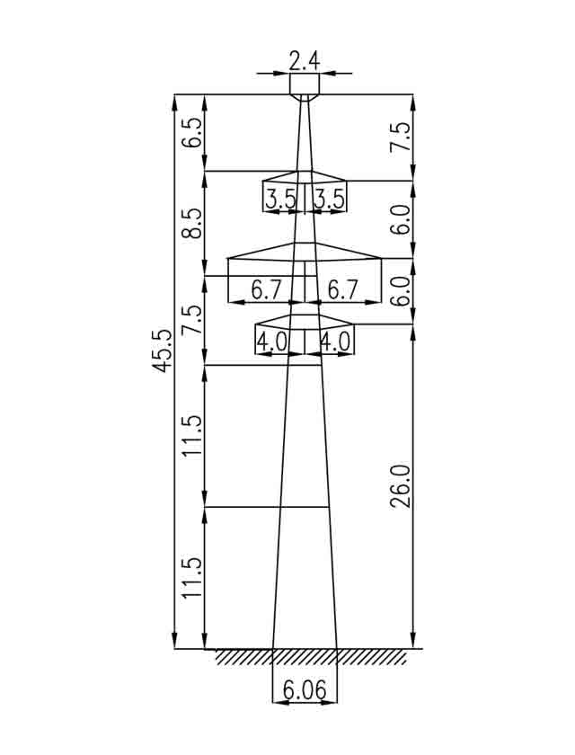
2П220-2Т

Шифр опоры 2П220-2Т
Тип опоры Промежуточная
Цепность Двухцепная
Марка проводов АС240/32, АС400/51
Марка троса С70 (ТК-11)
№ чертежа монтажной схемы 3.407.2-145.1 13КМ, СЗО ЭСП
Масса опоры по черт. КМ без цинка в кг 6876
Масса опоры по черт. КМ с цинком в кг 7130

Цены на опоры 2П220-2Т в Алма-ате могут различаться, в зависимости от марки стали металлоконструкций и антикоррозийного покрытия. Опора 2П220-2Т изготавливается по типовому проекту 3.407.2-145.1 13КМ, СЗО ЭСП. Масса опоры без антикоррозийного покрытия 6876 кг, с покрытием методом горячего цинкования 7130 кг. Все металлические опоры 220 КВ комплектуются метизами покрытые горячим цинком. Марка троса опоры 2П220-2Т С70 (ТК-11), марка проводов АС240/32, АС400/51.

    Заполните поля и мы с Вами свяжемся!






    Нажмите «Принять», если вы соглашаетесь с условиями обработки cookie и данных о поведении на сайте, нужных нам для аналитики. Запретить обработку cookie можете через браузер.
    Принять