Металлические опоры ЛЭП Стальные порталы ору Прожекторные мачты и молниеотводы Ростверки и металлические балки Антенные опоры и башни релейной связи Металлоконструкции различного назначения
35 кВ 110 кВ 220 кВ 330кВ 400 кВ 500 кВ 750 кВ
Анкерно-угловые Концевые Переходные Промежуточные

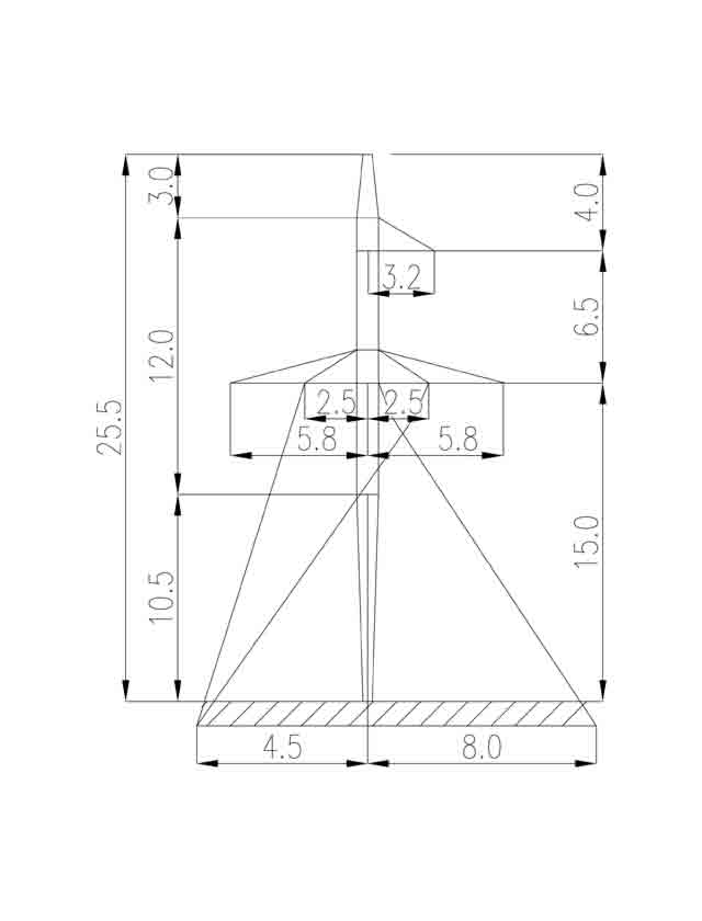
2П220-7-10.5

Шифр опоры 2П220-7-10.5
Тип опоры Промежуточная
Цепность Одноцепная
Марка троса C70 (ТК-11)
Марка проводов АС-240/32, АС400/51
№ чертежа монтажной схемы 3.407.2-165.1 18КМ, СЗО ЭСП
Масса опоры по черт. КМ без цинка в кг 3117
Масса опоры по черт. КМ с цинком в кг 3214

Цена на опору 2П220-7-10.5 в Алма-ате может зависеть от марки стали металлоконструкций и антикоррозийного покрытия. Опоры 2П220-7-10.5 изготавливаются поэтапно по чертежной монтажной схеме № 3.407.2-165.1 18КМ, СЗО ЭСП, марка проводов АС-240/32, АС400/51, марка троса C70 (ТК-11). По цепности опора 2П220-7-10.5 — одноцепная, по типу — промежуточная. Все опоры 220 кВ поставляем во все регионы России и в страны ближнего зарубежья. На заводе металлоконструкций вся продукция проходит контроль качества на всех этапах производства.

    Заполните поля и мы с Вами свяжемся!






    Нажмите «Принять», если вы соглашаетесь с условиями обработки cookie и данных о поведении на сайте, нужных нам для аналитики. Запретить обработку cookie можете через браузер.
    Принять