Металлические опоры ЛЭП Стальные порталы ору Прожекторные мачты и молниеотводы Ростверки и металлические балки Антенные опоры и башни релейной связи Металлоконструкции различного назначения
35 кВ 110 кВ 220 кВ 330кВ 400 кВ 500 кВ 750 кВ
Анкерно-угловые Переходные Промежуточные

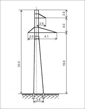
П110-1В

Шифр опоры П110-1В
Тип опоры Промежуточная
Цепность Одноцепные
Масса опоры по черт. КМ без цинка в кг 1922
Масса опоры по черт. КМ с цинком в кг 1996

Опоры П110-1В в Алма-ате применяются в качестве повышенных на ВЛ 110 кВ, могут различаться, в зависимости от марки стали металлоконструкций и антикоррозийного покрытия. Данный вид опор применяют в большинстве случаев, так как данные опоры ЛЭП легче, а значит дешевле. Минус данных опор, что они не могут выдерживать дополнительные нагрузки. П110-1В весят без цинкового покрытия 1922 килограмм, а с покрытием 1996 килограмм.

    Заполните поля и мы с Вами свяжемся!






    Нажмите «Принять», если вы соглашаетесь с условиями обработки cookie и данных о поведении на сайте, нужных нам для аналитики. Запретить обработку cookie можете через браузер.
    Принять