Металлические опоры ЛЭП Стальные порталы ору Прожекторные мачты и молниеотводы Ростверки и металлические балки Антенные опоры и башни релейной связи Металлоконструкции различного назначения
35 кВ 110 кВ 220 кВ 330кВ 400 кВ 500 кВ 750 кВ
Анкерно-угловые Промежуточные

У35-3

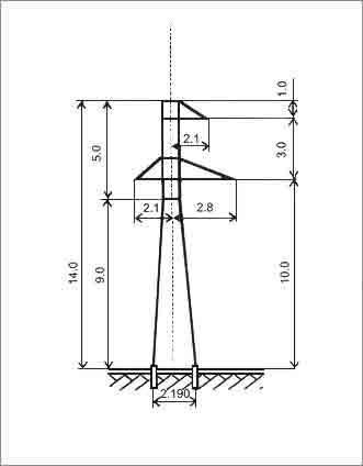
Шифр опоры У35-3
Тип опоры Анкерно-угловая
Цепность Одноцепная
База опоры А, мм 2190
Высота траверсы, м 10
Масса опоры по черт. КМ без цинка в кг 1635
Масса опоры по черт. КМ с цинком в кг 1700

Цены на опоры У35-3 в Алма-ате могут различаться, в зависимости от марки стали металлоконструкций и антикоррозийного покрытия. Масса опоры без покрытия 1635 кг, масса опоры по чертежу КМ с горячим цинковым покрытием 1700 кг. Высота траверсы 10 м, база опоры 2190 мм. По типу опора У35-3 — анкерно-угловая, по цепности — одноцепная.

    Заполните поля и мы с Вами свяжемся!






    Нажмите «Принять», если вы соглашаетесь с условиями обработки cookie и данных о поведении на сайте, нужных нам для аналитики. Запретить обработку cookie можете через браузер.
    Принять